Leave a Message

By providing your contact information to CIRE First Coast, your personal information will be processed in accordance with CIRE First Coast's Privacy Policy. By checking the box(es) below, you consent to receive communications regarding your real estate inquiries and related marketing and promotional updates in the manner selected by you. For SMS text messages, message frequency varies. Message and data rates may apply. You may opt out of receiving further communications from CIRE First Coast at any time. To opt out of receiving SMS text messages, reply STOP to unsubscribe.

Thank you for your message. We will be in touch with you shortly.

Explore Our Properties

Property Description

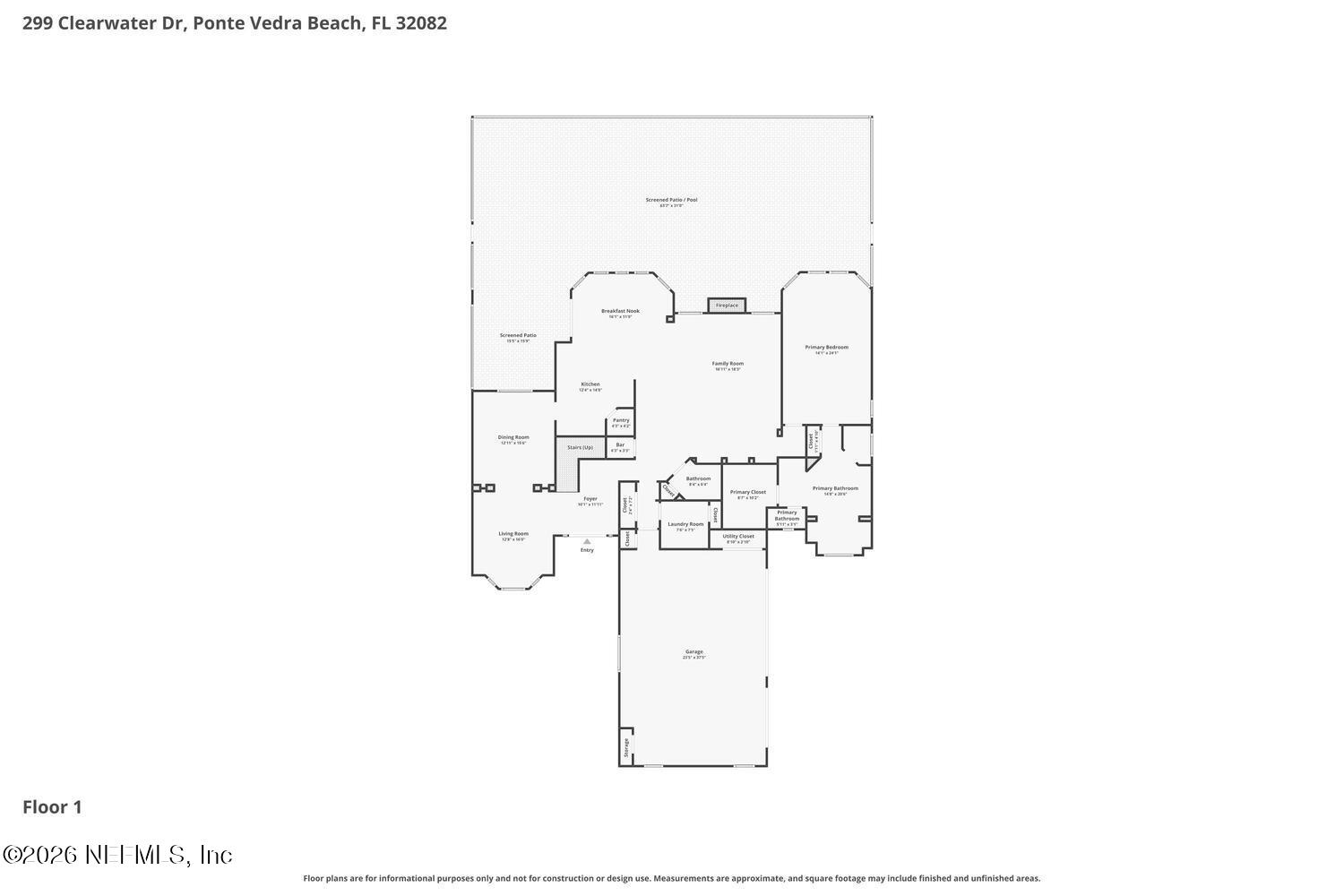
Welcome to 299 Clearwater Drive--undeniably one of the most stunning and extensively updated homes in the community. With architecture reminiscent of a luxury mountain chalet and over 4,000 square feet of thoughtfully designed living space, this 5 bedroom, 4 bathroom residence offers a rare blend of warmth, sophistication, and true move-in-ready peace of mind.

Perfectly positioned on a private pond homesite across from preserve-like green space, the backyard is a true resort-style retreat. Enjoy Florida living at its finest with a heated saltwater pool and spa, expansive paver deck, summer kitchen, covered outdoor TV lounge, and panoramic screened enclosure--an entertainer's dream.

Inside, soaring ceilings and designer finishes make an unforgettable first impression. The dramatic two-story gathering room showcases a floor-to-ceiling shiplap fireplace, striking coffered ceiling, and abundant natural light. Beautiful European white oak flooring flows throughout the home, complemented by a renovated chef's kitchen featuring modern finishes, floating shelves, tile backsplash, and premium appliances.

Major system improvements provide exceptional buyer confidence, including a 2020 roof, two HVAC systems replaced in 2022, updated water heaters, water softener, reverse osmosis system, and continued 2026 upgrades already underway.

Additional highlights include a 3-car garage, oversized circular paver driveway, landscape lighting, and immaculate maintenance throughout.

Located in a gated community with updated amenities including a renovated pool house and playground, and just minutes to top-rated St. Johns County schools, dining, shopping, and the beach.

Luxury, lifestyle, and turnkey condition--this is one of Ponte Vedra Beach's finest offerings. PROFESSIONAL PICTURES COMING THIS WEEK

Overview

Property Status
For Sale
MLS ID
2139754
Property Type
Residential
Year Built
2004

Features & Amenities

Total Area
4,038 Sq.Ft.
Neighborhood
Ponte Vedra Beach
Architecture Styles
Traditional
View Description
Lake
Stories
2
Garage Spaces
3.0
Water Source
Public
Utilites
Cable Connected, Electricity Connected, Sewer Connected, Water Connected
Pool
In Ground, Gas Heat, Heated, Salt Water, Screen Enclosure
Roof
Shingle
Lot Features
Sprinklers In Front, Sprinklers In Rear
Parking
Circular Driveway, Garage, Garage Door Opener
Heat Type
Central, Electric
Air Conditioning
Central Air, Electric, Multi Units, Zoned
Laundry Room
Electric Dryer Hookup, Washer Hookup
Fireplace
Electric
Appliances
Convection Oven, Dishwasher, Electric Cooktop, Electric Oven, Electric Range, Electric Water Heater, Ice Maker, Microwave, Refrigerator, Washer, Washer/Dryer Stacked, Water Softener Owned
Other Interior Features
Ceiling Fan(s), Eat-in Kitchen, Entrance Foyer, Jack and Jill Bath, Open Floorplan, Pantry, Primary Bathroom -Tub with Separate Shower, Primary Downstairs, Smart Thermostat, Split Bedrooms, Vaulted Ceiling(s), Walk-In Closet(s), Wine Cellar
Sewer
Public Sewer
HOA Amenities
Pool, Basketball Court, Clubhouse, Gated, Jogging Path, Pickleball, Playground, Tennis Court(s), Trash
Security Features
Smoke Detector(s)
Other Exterior Features
Balcony, Outdoor Kitchen
Elementary School
Ocean Palms
Middle School
Alice B. Landrum
High School
Ponte Vedra
Sales Price
$1,749,000
HOA
$2,542/yr

Downloads

299 CLEARWATER Drive

Schedule a Tour

We would love to help you see this beautiful home! As a full-service brokerage, we can help you tour. Please submit an offer, and answer questions about the buying process.

Thank you

for your interest in 299 CLEARWATER Drive, Ponte Vedra Beach, FL 32082

299 CLEARWATER Drive
Navigate
Ponte Vedra Beach

Explore Ponte Vedra Beach

read more

Mortgage Calculator

Estimate your monthly mortgage payment, including the principal and interest, property taxes, and HOA. Adjust the values to generate a more accurate rate.
$0,000 Your Payment 20 15 65
$0,000 Your Payment

I'm Interested In

299 CLEARWATER Drive

or
  • CallLissa Slade

    License #3292311

    (904) 200-5435
  • Featured Properties

    No results available

    Follow Us On Instagram