Leave a Message

By providing your contact information to CIRE First Coast, your personal information will be processed in accordance with CIRE First Coast's Privacy Policy. By checking the box(es) below, you consent to receive communications regarding your real estate inquiries and related marketing and promotional updates in the manner selected by you. For SMS text messages, message frequency varies. Message and data rates may apply. You may opt out of receiving further communications from CIRE First Coast at any time. To opt out of receiving SMS text messages, reply STOP to unsubscribe.

Thank you for your message. We will be in touch with you shortly.

Explore Our Properties

Property Description

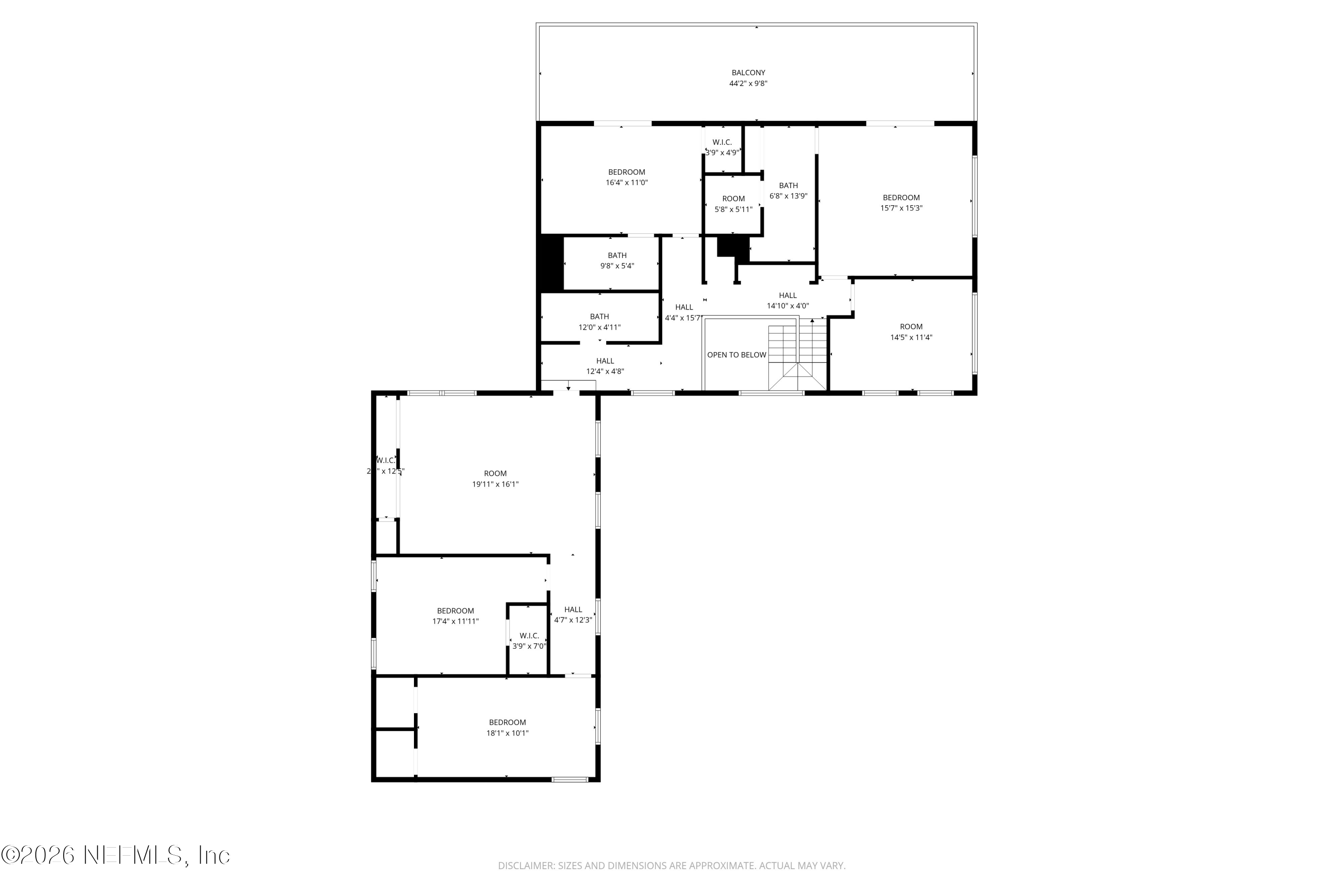
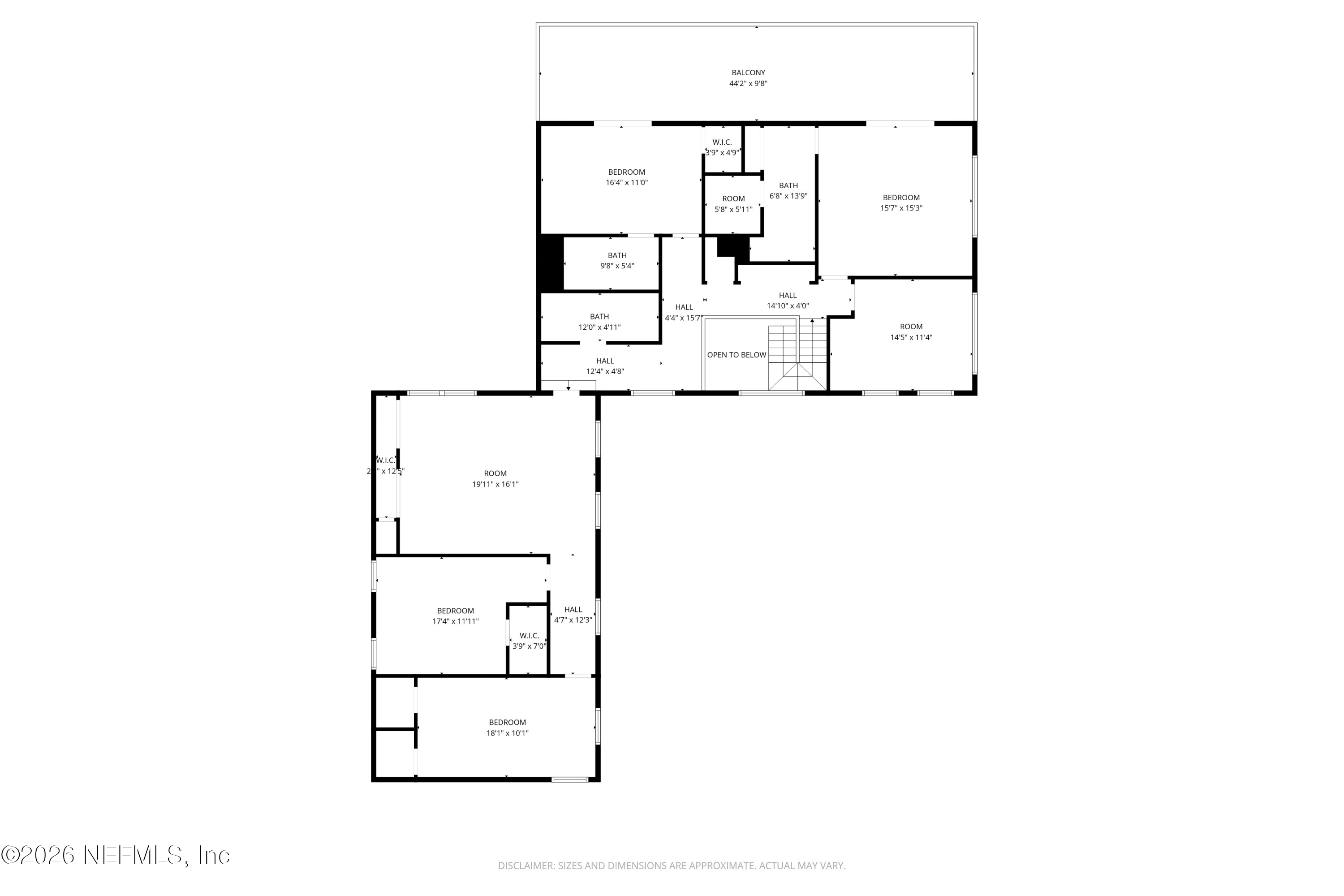
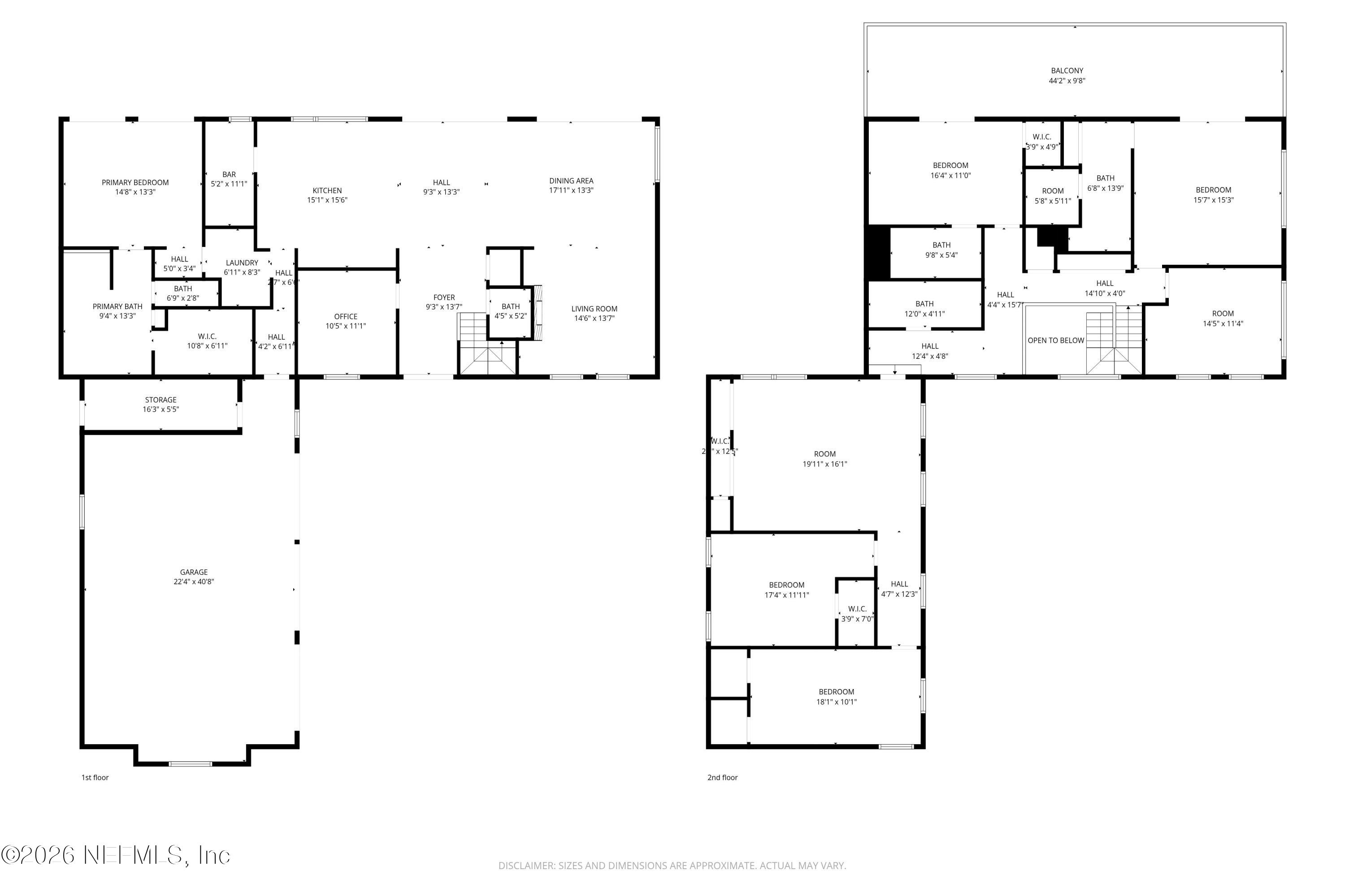
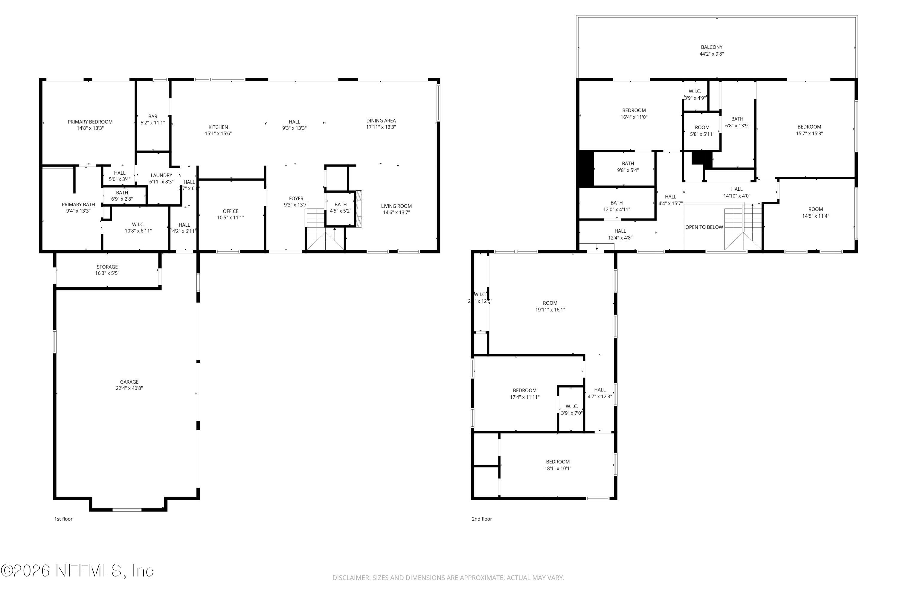
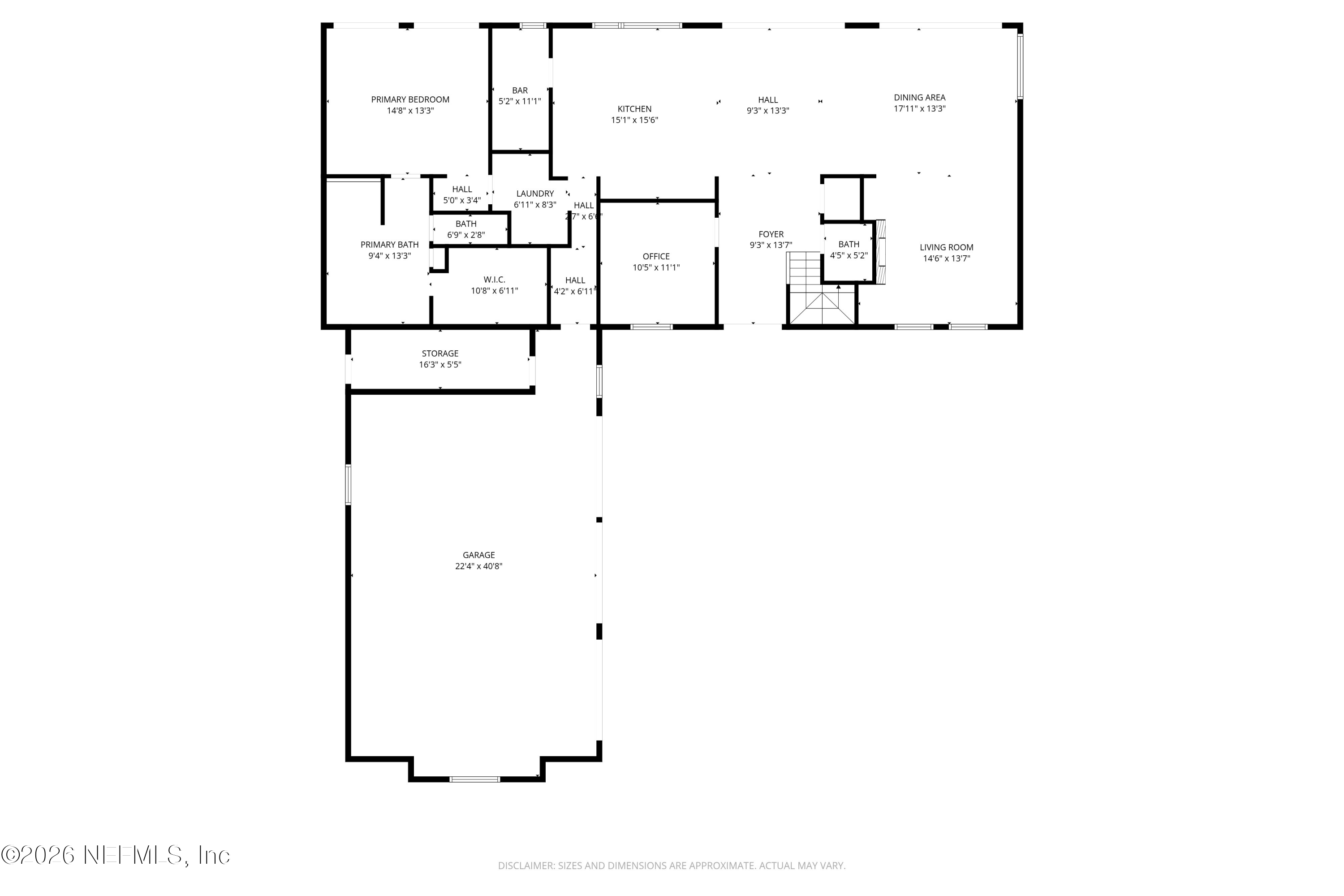
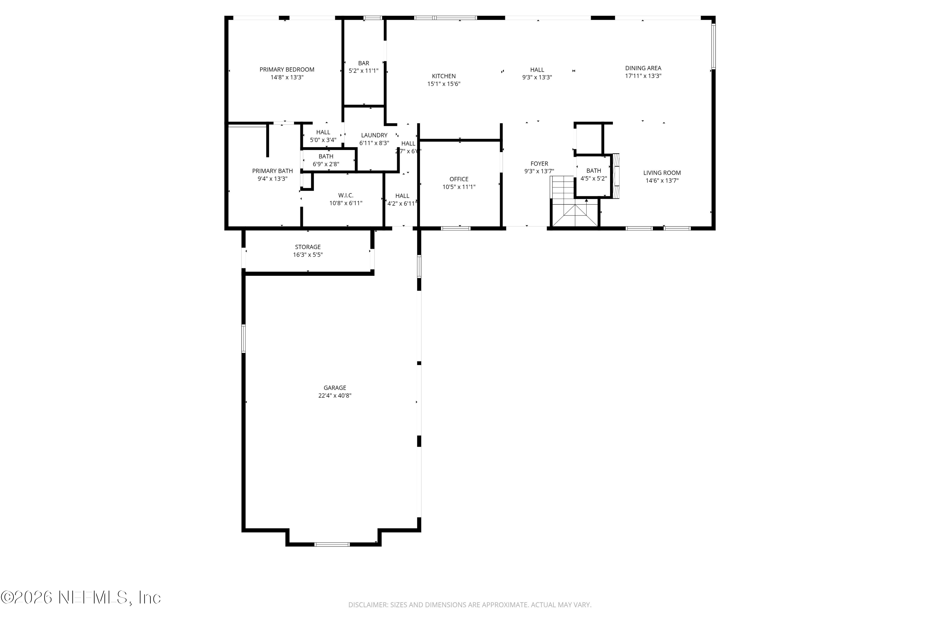
Discover the epitome of luxury waterfront living at 1317 South Shore Drive in the heart of Fleming Island. This stunning estate, meticulously gutted and completely renovated between 2025 and 2026 with high-end construction quality and exquisite finishes, offers an unparalleled blend of modern elegance and serene natural beauty. Nestled on a sprawling 1.71-acre lot with 100 feet of pristine water frontage along Doctors Lake, this property boasts breathtaking, unobstructed views that capture the essence of Florida's coastal charm. Step outside to your private oasis, featuring a sparkling pool, summer kitchen, a large balcony overlooking it all, and a dock with boathouse; ideal for boating enthusiasts or simply savoring sunsets over the water. Inside, the expansive 3,977 square feet of living space is designed for both comfort and sophistication. The open-concept layout includes 5 spacious bedrooms, plus a dedicated office and versatile flex rooms to suit your lifestyle needs. With 4.5 luxurious bathrooms, every detail has been thoughtfully curated. The heart of the home is the large gourmet kitchen, equipped with top-of-the-line appliances, custom cabinetry, and a convenient butler's pantry! Additional highlights include a generous 3-car garage for ample storage and convenience. This fully reimagined residence combines timeless appeal with contemporary upgrades, ensuring a turnkey experience in one of Fleming Island's most coveted locations. Don't miss this rare opportunity to own a piece of paradise!

Overview

Property Status
Active Under Contract
Lot Size
2.02 Acres
MLS ID
2134775
Property Type
Residential
Year Built
1977

Features & Amenities

Architecture Styles
Traditional
View Description
Lake, Water
Stories
2
Garage Spaces
3.0
Water Source
Private, Well
Utilites
Cable Available, Electricity Connected, Sewer Connected, Water Connected, Propane
Pool
In Ground
Roof
Shingle
Parking
Additional Parking, Garage
Heat Type
Central, Electric, Heat Pump
Air Conditioning
Central Air, Electric
Laundry Room
In Unit
Fireplace
Electric
Appliances
Dishwasher, Disposal, Dryer, Electric Oven, Electric Water Heater, Induction Cooktop, Microwave, Refrigerator, Tankless Water Heater
Other Interior Features
Breakfast Bar, Built-in Features, Butler Pantry, Ceiling Fan(s), Entrance Foyer, Kitchen Island, Primary Bathroom -Tub with Separate Shower, Primary Downstairs, Split Bedrooms, Walk-In Closet(s)
Sewer
Public Sewer
Other Exterior Features
Balcony, Boat Lift, Dock, Outdoor Kitchen
Sales Price
$2,199,000
Real Estate Tax
$15,490/yr

Downloads

1317 SOUTH SHORE Drive

Schedule a Tour

We would love to help you see this beautiful home! As a full-service brokerage, we can help you tour. Please submit an offer, and answer questions about the buying process.

Thank you

for your interest in 1317 SOUTH SHORE Drive, Fleming Island, FL 32003

1317 SOUTH SHORE Drive
Navigate
1317 SOUTH SHORE Drive
explore in 3d

Mortgage Calculator

Estimate your monthly mortgage payment, including the principal and interest, property taxes, and HOA. Adjust the values to generate a more accurate rate.
$0,000 Your Payment 20 15 65
$0,000 Your Payment

I'm Interested In

1317 SOUTH SHORE Drive

or
  • CallPaige Covington

    License #3264968

    (904) 563-5717
  • Featured Properties

    No results available

    Follow Us On Instagram