Leave a Message

By providing your contact information to CIRE First Coast, your personal information will be processed in accordance with CIRE First Coast's Privacy Policy. By checking the box(es) below, you consent to receive communications regarding your real estate inquiries and related marketing and promotional updates in the manner selected by you. For SMS text messages, message frequency varies. Message and data rates may apply. You may opt out of receiving further communications from CIRE First Coast at any time. To opt out of receiving SMS text messages, reply STOP to unsubscribe.

Thank you for your message. We will be in touch with you shortly.

Explore Our Properties

Property Description

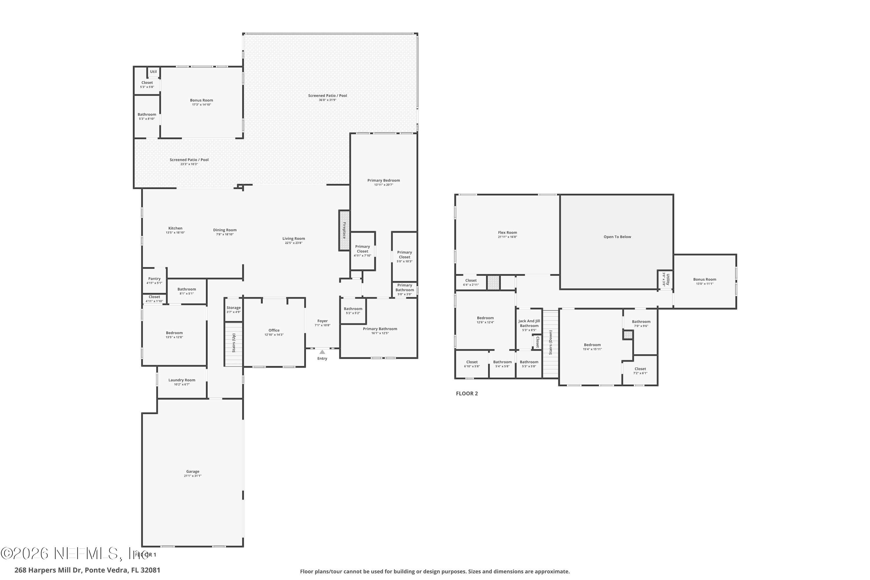
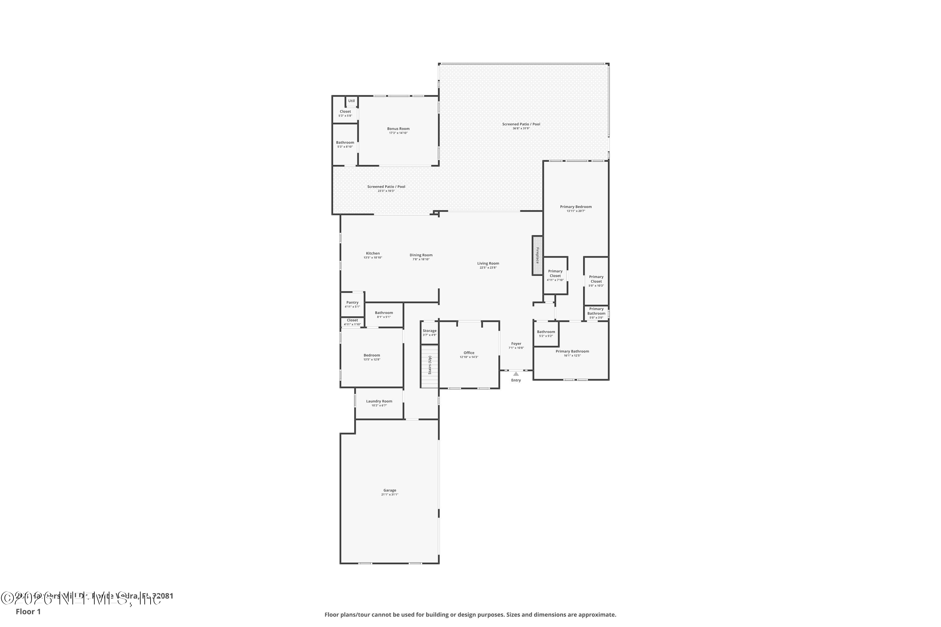
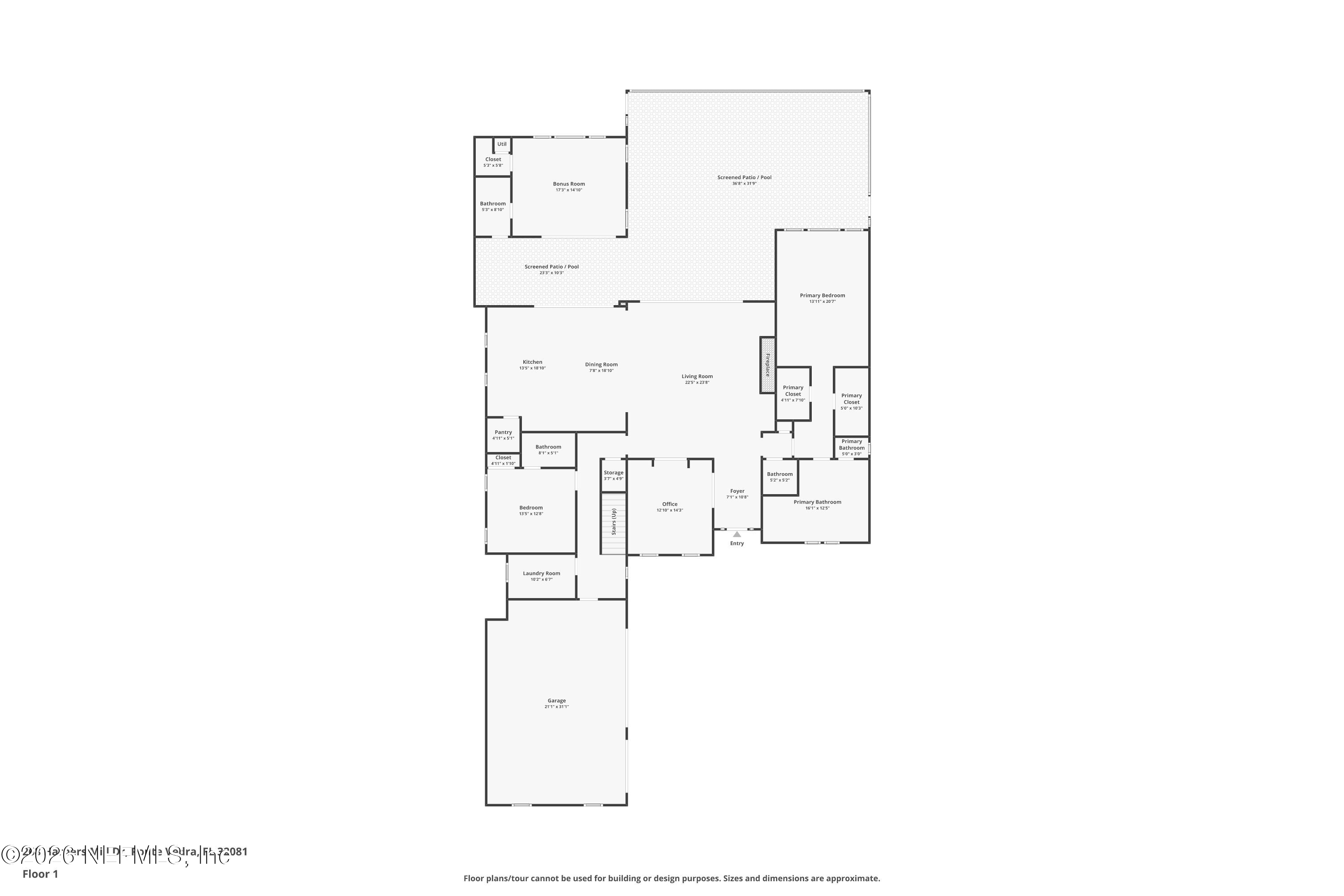
Discover an exquisite piece of paradise in this Dostie Homes-built residence, offering 4,252 square feet of elevated design, exceptional craftsmanship, and resort-style living. Featuring 5 bedrooms, 5 bathrooms, a private office, a separate yoga/meditation room, and a fully air-conditioned detached cabana suite, this home seamlessly blends elegance and functionality on a premier water-to-preserve lot.

A dramatic 22-foot stone accent wall anchors the main living space and showcases a spectacular 9-foot custom 3D electric fireplace. Expansive walls of glass frame tranquil lake and preserve views, flooding the home with natural light and capturing breathtaking sunsets visible from the kitchen, dining area, living room, and even the jacuzzi. In the living room, a four-panel sliding glass door system fully stacks behind the wall - an exceptional upgrade - effortlessly extending the living space into the screened lanai. Additional three-panel sliding glass doors off the dining area and the cabana further enhance the home's seamless indoor-outdoor flow. All sliding doors are equipped with automated roller shades, conveniently controlled by remote.

The gourmet kitchen is thoughtfully designed with real red-oak ceiling beams, quartz countertops, stacked glass-front upper cabinetry, soft-close cabinets, a custom designer wood hood, GE Cafe stainless steel appliance suite, and a spacious walk-in pantry. Elegant custom built-ins, French doors, a designer barn door, curated wallpaper, statement lighting, and luxury vinyl plank flooring throughout the home (except for two upstairs bedrooms) elevate the interior with both beauty and durability.

The private office features custom built-ins and dual doors for added privacy, while the dedicated yoga or meditation room offers a serene retreat ideal for wellness, creativity, or reading.

Step outside to a true resort-style sanctuary featuring a screened-in saltwater pool and spa with white leathered marble decking, French gray pool finish, dark blue glass accent tile, two water jets, and a bubbler. The outdoor kitchen is fully equipped with a built-in grill, beverage refrigerator, and granite countertops - perfect for entertaining. The peaceful lake-to-preserve backdrop creates a sense of privacy and calm, delivering some of the most stunning sunset views in the neighborhood.

The detached cabana suite includes its own HVAC system, full bathroom, and walk-in closet - ideal for guests, in-laws, teens, a private office, studio, or flex space.

Additional highlights include:
- Three HVAC systems (one per floor plus cabana)
- Three-car garage with epoxy flooring
- EV charger installed
- Generator-ready outlet
- Custom built-ins in the living room and office
- Zoysia grass and professionally designed palm landscaping, including multiple mature Sylvester palms

This exceptional home offers a rare combination of refined elegance, thoughtful design, seamless indoor-outdoor living, and premium natural views - creating a true retreat in the heart of Ponte Vedra.

Overview

Property Status
For Sale
Lot Size
0.28 Acres
MLS ID
2125703
Property Type
Residential
Year Built
2022

Features & Amenities

Neighborhood
Ponte Vedra
Architecture Styles
Traditional
View Description
Pond, Trees/Woods
Stories
2
Garage Spaces
3.0
Water Source
Public
Utilites
Cable Available, Electricity Available, Natural Gas Available, Water Available
Pool
In Ground, Heated, Salt Water, Screen Enclosure
Roof
Shingle
Lot Features
Corner Lot
Parking
Attached, Garage, Garage Door Opener
Heat Type
Central, Heat Pump
Air Conditioning
Central Air
Fireplace
Electric
Appliances
Convection Oven, Dishwasher, Disposal, Dryer, Gas Range, Gas Water Heater, Ice Maker, Microwave, Refrigerator, Tankless Water Heater, Washer, Water Softener Owned
Other Interior Features
Butler Pantry, Ceiling Fan(s), Guest Suite, His and Hers Closets, Jack and Jill Bath, Primary Bathroom -Tub with Separate Shower, Primary Downstairs, Smart Thermostat, Split Bedrooms, Vaulted Ceiling(s), Walk-In Closet(s)
HOA Amenities
Pool, Basketball Court, Childrens Pool, Dog Park, Fitness Center, Jogging Path, Park, Pickleball, Playground, Tennis Court(s)
Security Features
Smoke Detector(s)
Elementary School
Pine Island Academy
Middle School
Pine Island Academy
High School
Allen D. Nease
Sales Price
$1,975,000
Real Estate Tax
$16,960/yr
HOA
$700/yr

Downloads

268 HARPER'S MILL Drive

Schedule a Tour

We would love to help you see this beautiful home! As a full-service brokerage, we can help you tour. Please submit an offer, and answer questions about the buying process.

Thank you

for your interest in 268 HARPER'S MILL Drive, Ponte Vedra, FL 32081

268 HARPER'S MILL Drive
Navigate
Ponte Vedra

Explore Ponte Vedra

read more
268 HARPER'S MILL Drive
explore in 3d

Mortgage Calculator

Estimate your monthly mortgage payment, including the principal and interest, property taxes, and HOA. Adjust the values to generate a more accurate rate.
$0,000 Your Payment 20 15 65
$0,000 Your Payment

I'm Interested In

268 HARPER'S MILL Drive

or
  • CallVeronica Wilen

    License #3427001

    (904) 808-3737
  • Featured Properties

    No results available

    Follow Us On Instagram