Leave a Message

By providing your contact information to CIRE First Coast, your personal information will be processed in accordance with CIRE First Coast's Privacy Policy. By checking the box(es) below, you consent to receive communications regarding your real estate inquiries and related marketing and promotional updates in the manner selected by you. For SMS text messages, message frequency varies. Message and data rates may apply. You may opt out of receiving further communications from CIRE First Coast at any time. To opt out of receiving SMS text messages, reply STOP to unsubscribe.

Thank you for your message. We will be in touch with you shortly.

Explore Our Properties

Property Description

HIGHEST & BEST BY FRIDAY 2/20 5PM** Welcome to this beautifully maintained 4-BR, 2.5-Bath home built in 2007, offering 2,218 square feet of living space on a spacious lot with 100' of front footage. This property combines modern updates with comfortable features, making it an ideal choice for families or those seeking a turnkey residence.
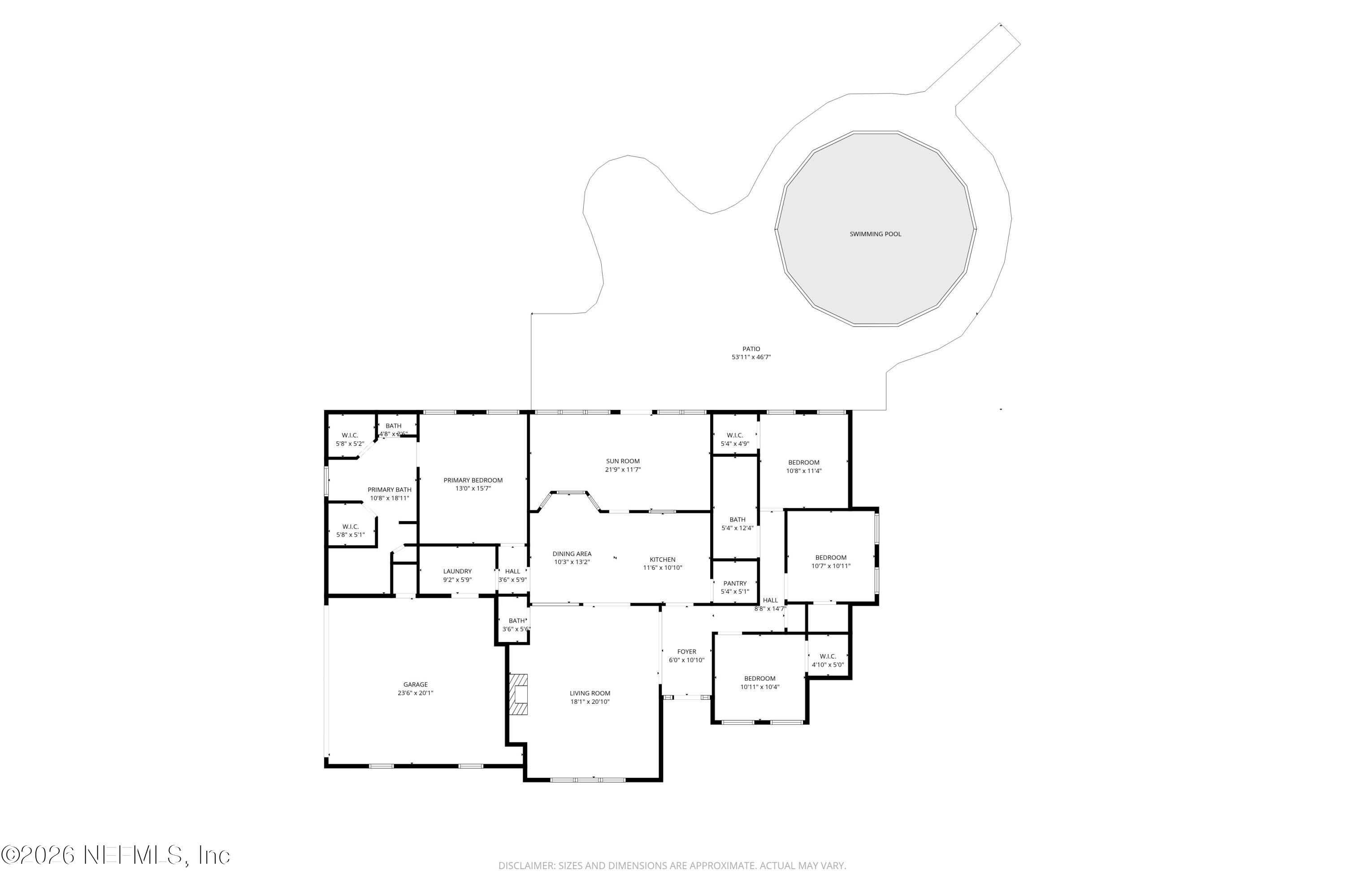
Step inside to discover an open and functional layout (see attached floor plan), highlighted by an updated kitchen with contemporary finishes, perfect for everyday meals or entertaining. The home boasts a mix of wood, carpet, and tile flooring throughout, providing warmth and durability in every room. Recent upgrades include a NEW ROOF, updated plumbing, and public sewer and water connections for added convenience and reliability.
Outside, enjoy the privacy of a fully fenced yard, complete with covered and open porches for relaxing or hosting gatherings. The above-ground pool adds a fun, refreshing element for warm Florida days!

Overview

Property Status
Active Under Contract
Lot Size
0.37 Acres
MLS ID
2130500
Property Type
Residential
Year Built
2007

Features & Amenities

Neighborhood
Jacksonville
Architecture Styles
Traditional
Stories
1
Garage Spaces
2.0
Water Source
Public
Utilites
Cable Available, Electricity Connected, Sewer Connected, Water Connected
Pool
Above Ground
Roof
Shingle
Parking
Additional Parking, Attached, Circular Driveway, Garage, RV Access/Parking
Heat Type
Central, Electric, Heat Pump
Air Conditioning
Central Air, Electric
Laundry Room
Electric Dryer Hookup, In Unit, Washer Hookup
Fireplace
Wood Burning
Appliances
Dishwasher, Disposal, Electric Oven, Electric Range, Ice Maker, Microwave, Refrigerator, Wine Cooler
Other Interior Features
Breakfast Bar, Built-in Features, Ceiling Fan(s), Entrance Foyer, Pantry, Primary Bathroom -Tub with Separate Shower, Primary Downstairs, Vaulted Ceiling(s), Walk-In Closet(s)
Sewer
Public Sewer
Sales Price
$425,000

Downloads

2642 PARENTAL HOME Road

Schedule a Tour

We would love to help you see this beautiful home! As a full-service brokerage, we can help you tour. Please submit an offer, and answer questions about the buying process.

Thank you

for your interest in 2642 PARENTAL HOME Road, Jacksonville, FL 32216

2642 PARENTAL HOME Road
Navigate
Jacksonville

Explore Jacksonville

With Florida’s youngest population – and one of its hippest – Jacksonville, or Jax as locals call it.

read more

Mortgage Calculator

Estimate your monthly mortgage payment, including the principal and interest, property taxes, and HOA. Adjust the values to generate a more accurate rate.
$0,000 Your Payment 20 15 65
$0,000 Your Payment

I'm Interested In

2642 PARENTAL HOME Road

or
  • CallPaige Covington

    License #3264968

    (904) 563-5717
  • Featured Properties

    No results available

    Follow Us On Instagram