Leave a Message

By providing your contact information to CIRE First Coast, your personal information will be processed in accordance with CIRE First Coast's Privacy Policy. By checking the box(es) below, you consent to receive communications regarding your real estate inquiries and related marketing and promotional updates in the manner selected by you. For SMS text messages, message frequency varies. Message and data rates may apply. You may opt out of receiving further communications from CIRE First Coast at any time. To opt out of receiving SMS text messages, reply STOP to unsubscribe.

Thank you for your message. We will be in touch with you shortly.

Explore Our Properties

Property Description

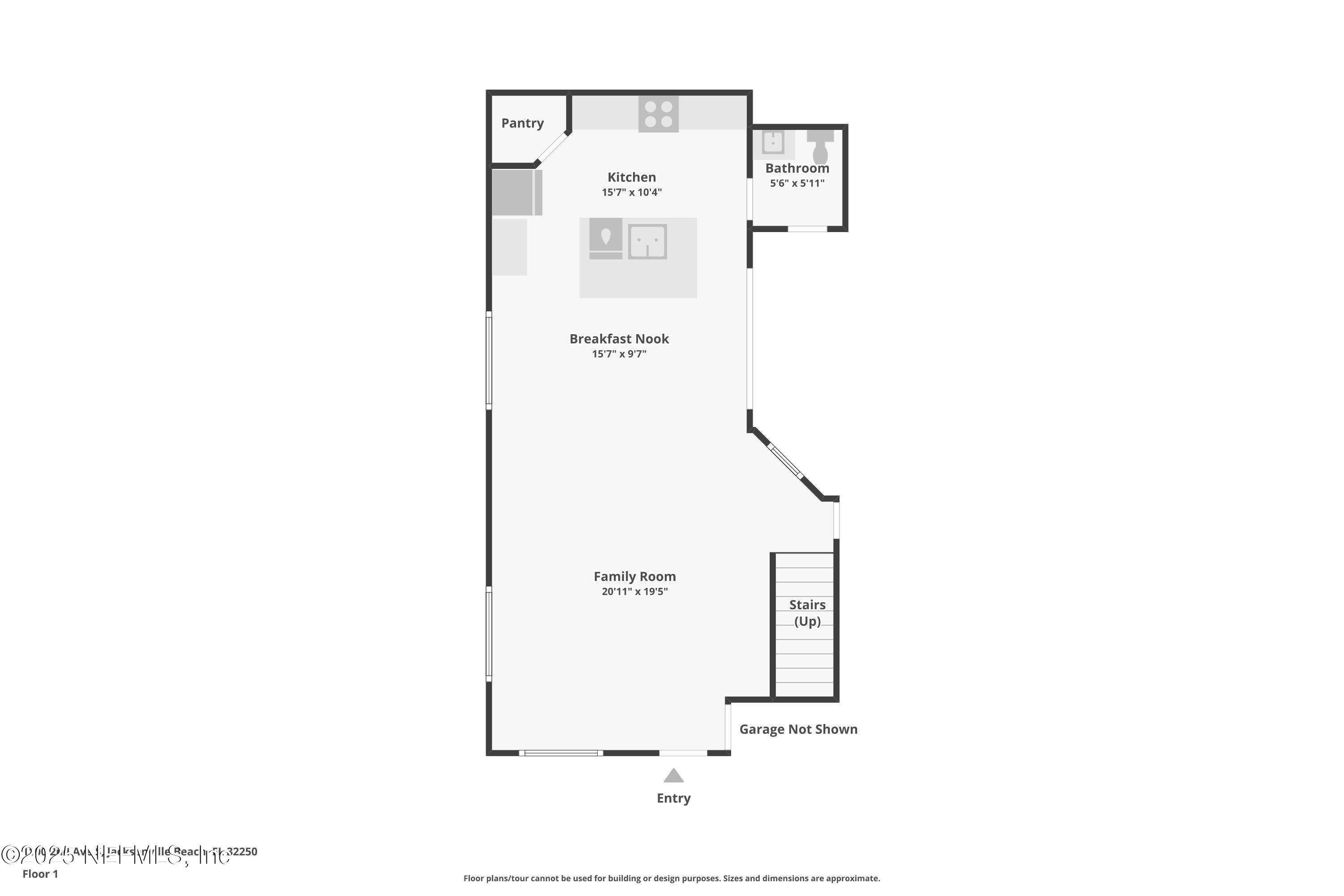
Live the Jacksonville Beach lifestyle in this pool home just steps from the newly renovated Gonzales Park and walking distance to shopping, restaurants, and the beach. The bright, open layout is perfect for entertaining with generous living spaces, large bedrooms, and an upstairs bonus room ideal for a home office or play room. Outside, your private oasis awaits with a sparkling pool, lush tropical landscaping, and a spacious fenced backyard designed for relaxing or hosting. Recent updates include a 1-year-old HVAC, new fence (2025), new pool pump (2025), newer refrigerator (2023), dishwasher (2025), disposal (2022), microwave (2021), and newer toilets. A true turnkey beach retreat.

Overview

Property Status
Active Under Contract
Lot Size
6,534 Sq.Ft.
MLS ID
2117617
Property Type
Residential
Year Built
2014

Features & Amenities

Neighborhood
Jacksonville Beach
Architecture Styles
Traditional
View Description
Pool
Stories
2
Garage Spaces
2.0
Water Source
Public
Utilites
Cable Available, Electricity Connected, Sewer Connected, Water Connected
Pool
In Ground
Roof
Shingle
Lot Features
Corner Lot
Parking
Attached, Garage, Garage Door Opener
Heat Type
Electric
Air Conditioning
Central Air
Laundry Room
Electric Dryer Hookup, Washer Hookup
Appliances
Dishwasher, Disposal, Dryer, Electric Cooktop, Electric Oven, Electric Water Heater, Microwave, Refrigerator, Washer
Other Interior Features
Breakfast Bar, Ceiling Fan(s), Entrance Foyer, Kitchen Island, Open Floorplan, Pantry, Primary Bathroom -Tub with Separate Shower, Split Bedrooms, Walk-In Closet(s)
Sewer
Public Sewer
Security Features
Smoke Detector(s)
Other Exterior Features
Fire Pit
Elementary School
San Pablo
Middle School
Duncan Fletcher
High School
Duncan Fletcher
Sales Price
$900,000

Downloads

1100 2ND Avenue N

Schedule a Tour

We would love to help you see this beautiful home! As a full-service brokerage, we can help you tour. Please submit an offer, and answer questions about the buying process.

Enter a valid email

Thank you

for your interest in 1100 2ND Avenue N, Jacksonville Beach, FL 32250

back to page
1100 2ND Avenue N
Navigate
Jacksonville Beach

Explore Jacksonville Beach

Most areas in Jacksonville Beach are very quiet, as noise from streets and other parts of the city is rarely an issue.

read more
1100 2ND Avenue N
explore in 3d

Mortgage Calculator

Estimate your monthly mortgage payment, including the principal and interest, property taxes, and HOA. Adjust the values to generate a more accurate rate.
$0,000 Your Payment 20 15 65
$0,000 Your Payment

I'm Interested In

1100 2ND Avenue N

or
  • CallTom Gibbon

    License #3144253

    (904) 566-6501
  • Featured Properties

    No results available

    Follow Us On Instagram