Leave a Message

By providing your contact information to CIRE First Coast, your personal information will be processed in accordance with CIRE First Coast's Privacy Policy. By checking the box(es) below, you consent to receive communications regarding your real estate inquiries and related marketing and promotional updates in the manner selected by you. For SMS text messages, message frequency varies. Message and data rates may apply. You may opt out of receiving further communications from CIRE First Coast at any time. To opt out of receiving SMS text messages, reply STOP to unsubscribe.

Thank you for your message. We will be in touch with you shortly.

Explore Our Properties

Property Description

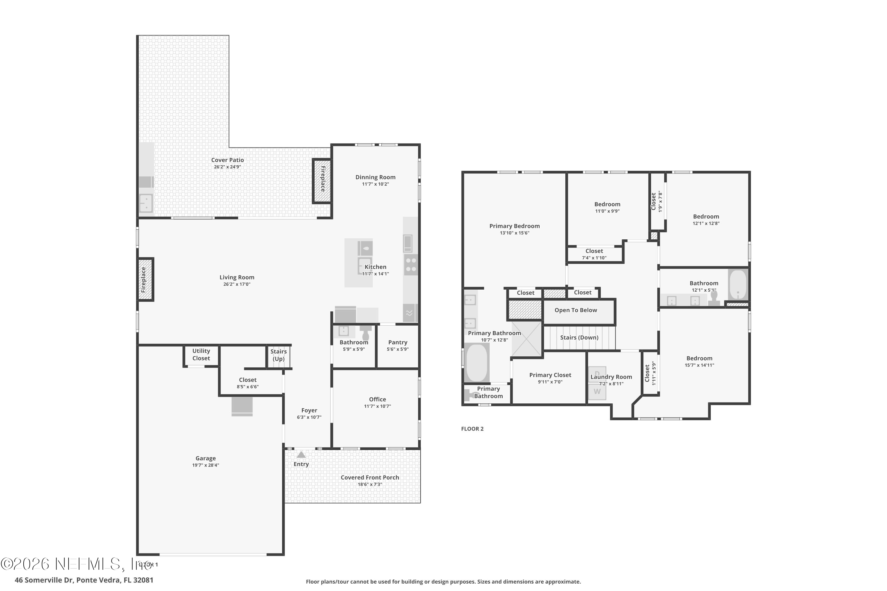
Live the sought-after Nocatee lifestyle in this better-than-new home, just one year old and loaded with upgrades beyond the builder's standard finishes. Featuring 4 bedrooms, 2.5 baths, plus a dedicated office, this thoughtfully designed home offers both functionality and style. You'll love the engineered hardwood flooring, extensive custom trim work, and high-end touches throughout, including a custom pantry and built-out closets for optimal storage. Designed for both everyday living and entertaining, the home boasts two natural gas fireplaces and an incredible outdoor space complete with a summer kitchen featuring a refrigerator, ice maker, and sink with reverse osmosis, plus an outdoor shower. The spacious backyard offers plenty of room to add a pool, while footers are already in place for a future screened enclosure on the covered porch. Additional highlights include a 2-car garage plus extra storage and a whole-home high-end water filtration system. Ideally located near Seabrook Village Park, residents enjoy access to a dog park, playground, sports fields, and open green space--along with all of Nocatee's world-class amenities, including water parks, fitness centers, trails, and more. This is your opportunity to own a move-in ready, upgraded home in one of Northeast Florida's most desirable communities!

Overview

Property Status
For Sale
Lot Size
6,098.4 Sq.Ft.
MLS ID
2137086
Property Type
Residential
Year Built
2024

Features & Amenities

Neighborhood
Ponte Vedra
Architecture Styles
Traditional
Stories
2
Garage Spaces
2.0
Water Source
Public
Utilites
Cable Available, Electricity Connected, Natural Gas Connected, Sewer Connected, Water Connected
Roof
Shingle
Parking
Attached, Garage
Heat Type
Central, Electric, Heat Pump
Air Conditioning
Central Air, Electric
Laundry Room
In Unit
Fireplace
Gas, Outside
Appliances
Dishwasher, Disposal, Double Oven, Gas Range, Ice Maker, Microwave, Refrigerator
Other Interior Features
Breakfast Bar, Ceiling Fan(s), Entrance Foyer, Kitchen Island, Open Floorplan, Pantry, Primary Bathroom -Tub with Separate Shower, Walk-In Closet(s)
Sewer
Public Sewer
HOA Amenities
Pool, Dog Park, Jogging Path, Park, Playground
Other Exterior Features
Outdoor Kitchen, Outdoor Shower
Elementary School
Pine Island Academy
Middle School
Pine Island Academy
High School
Allen D. Nease
Sales Price
$879,000
Real Estate Tax
$10,510/yr
HOA
$850/yr

Downloads

46 SOMERVILLE Drive

Schedule a Tour

We would love to help you see this beautiful home! As a full-service brokerage, we can help you tour. Please submit an offer, and answer questions about the buying process.

Thank you

for your interest in 46 SOMERVILLE Drive, Ponte Vedra, FL 32081

46 SOMERVILLE Drive
Navigate
Ponte Vedra

Explore Ponte Vedra

read more

Mortgage Calculator

Estimate your monthly mortgage payment, including the principal and interest, property taxes, and HOA. Adjust the values to generate a more accurate rate.
$0,000 Your Payment 20 15 65
$0,000 Your Payment

I'm Interested In

46 SOMERVILLE Drive

or
  • CallKatie Hayse

    License #3398658

    (904) 652-6231
  • Featured Properties

    No results available

    Follow Us On Instagram