Leave a Message

By providing your contact information to CIRE First Coast, your personal information will be processed in accordance with CIRE First Coast's Privacy Policy. By checking the box(es) below, you consent to receive communications regarding your real estate inquiries and related marketing and promotional updates in the manner selected by you. For SMS text messages, message frequency varies. Message and data rates may apply. You may opt out of receiving further communications from CIRE First Coast at any time. To opt out of receiving SMS text messages, reply STOP to unsubscribe.

Thank you for your message. We will be in touch with you shortly.

Explore Our Properties

Property Description

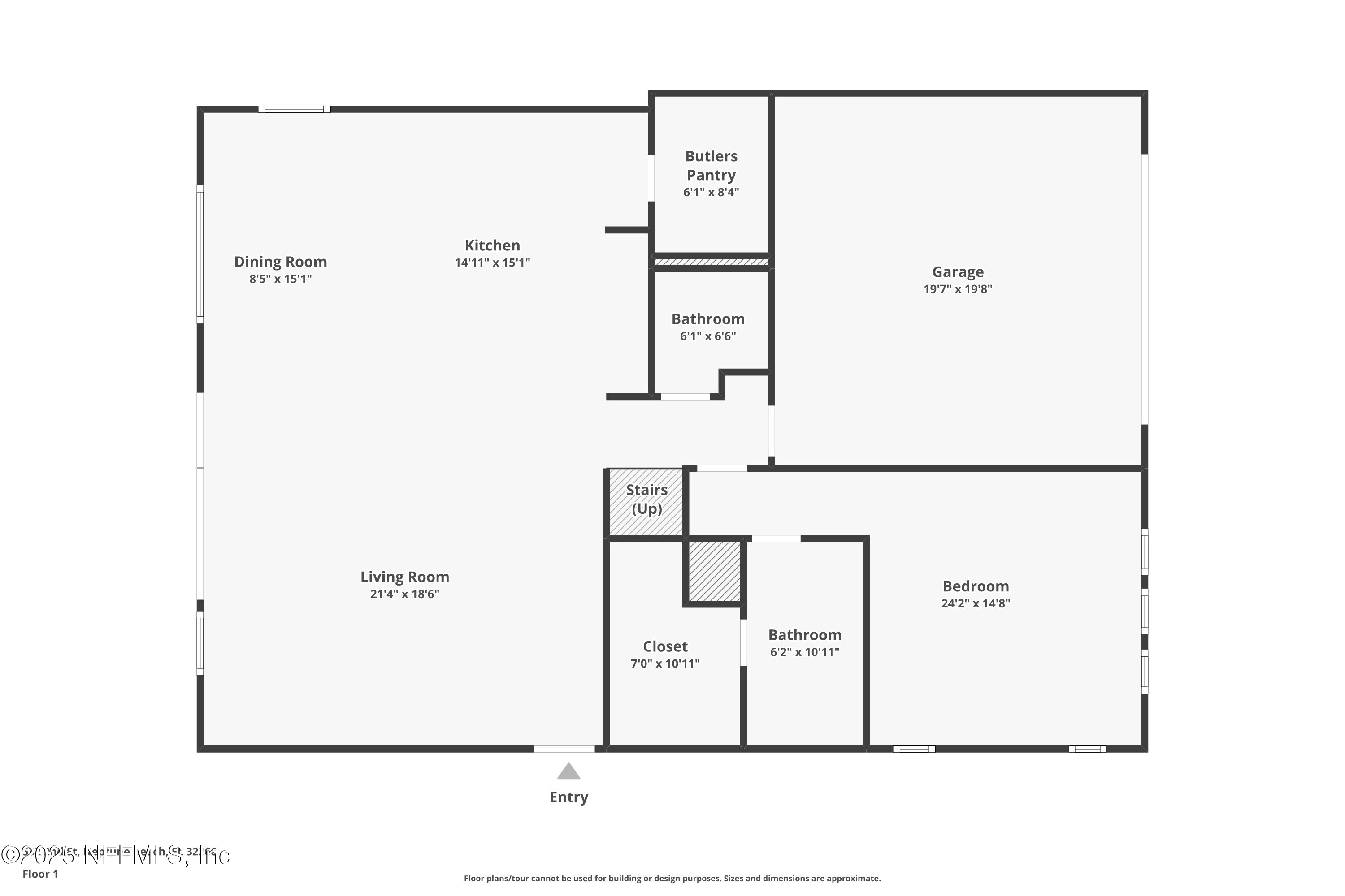
Featured on the 8th Annual Beaches Tour of Homes, this modern coastal home in Neptune Beach delivers bold architecture, flexible living, and a serene outdoor space, just two blocks to the ocean and five blocks to the lively Beaches Town Center. Completed in November 2025, this new construction home exudes luxury. Sitting on a prime corner lot framed by lush landscaping, dual driveways, and a signature Canary palm. A black and brick exterior demands curb appeal while warm oak tones with wide-plank engineered hardwood floors, and a light-filled interior is your invitation to stay with a feeling of calm and connection. Two owner's suites, one on each floor, make multi-generational living effortless. The upstairs suite features a coffered ceiling with white oak tongue-and-groove and dual custom walk-in closets. A spa-like bath with a Cristallo stone double vanity, dual Brizo rainhead showers, 66'' soaking tub, 3-person infrared sauna, smart bidet toilet, and a custom white oak mirrored ghost door add privacy to your wellness retreat. The first-floor suite includes its own walk-in closet and walk-in shower for added comfort and independence. Step through a custom 8' steel smart-glass front door into a warm and modern open-concept main level with 10' ceilings, a striking staircase with architectural louvers, and a moody designer powder room. The kitchen features floor-to-ceiling flat-panel cabinetry, 42" JennAir panel-ready fridge, Hestan gas range and dishwasher, leathered Taj Mahal quartzite island, under-cabinet lighting, and a butler's pantry with drawer microwave, second laundry, and leathered granite. Upstairs offers a loft lounge with wet bar and wine fridge, plus two guest bedrooms sharing a designer bath with split wet zone. A second laundry conveniently serves the upstairs bedrooms. Outdoor living shines with 16' sliding glass doors leading to a covered lanai, summer kitchen, firepit, and a saltwater pool with color-changing lights, sun shelf, and waterfall. The artificial turf yard is fully fenced with dual gates including a 50" golf cart gate and outdoor shower. No HOA. Not in a flood zone. A showpiece of form and function, this home is part of Neptune Beach's architectural story, designed for everyday ease and steps to the sand. This home doesn't just check boxes, it offers a lifestyle you won't find twice. Schedule your private showing today.

Overview

Property Status
Active Under Contract
Lot Size
6,098.4 Sq.Ft.
MLS ID
2116246
Property Type
Residential
Year Built
2025

Features & Amenities

Neighborhood
Neptune Beach
Architecture Styles
Multi Generational, Other
Stories
2
Garage Spaces
2.0
Water Source
Public
Utilites
Cable Available, Electricity Connected, Sewer Connected, Water Connected, Propane
Pool
In Ground, Fenced, Salt Water, Waterfall
Roof
Shingle
Lot Features
Corner Lot, Sprinklers In Front, Sprinklers In Rear
Parking
Garage, Garage Door Opener
Heat Type
Central
Air Conditioning
Central Air
Laundry Room
In Unit, Lower Level, Upper Level
Appliances
Dishwasher, Disposal, Dryer, Gas Oven, Gas Range, Gas Water Heater, Ice Maker, Microwave, Refrigerator, Tankless Water Heater, Washer, Washer/Dryer Stacked, Wine Cooler
Other Interior Features
Built-in Features, Butler Pantry, Ceiling Fan(s), Guest Suite, His and Hers Closets, In-Law Floorplan, Jack and Jill Bath, Kitchen Island, Open Floorplan, Pantry, Primary Bathroom - Shower No Tub, Primary Bathroom -Tub with Separate Shower, Primary Downstairs, Walk-In Closet(s), Wet Bar
Sewer
Public Sewer
Security Features
Smoke Detector(s)
Other Exterior Features
Balcony, Fire Pit, Outdoor Kitchen, Outdoor Shower
Elementary School
Neptune Beach
Middle School
Fletcher Jr High
High School
Duncan Fletcher
Sales Price
$3,245,000
Real Estate Tax
$14,430/yr

Downloads

532 2ND Street

Schedule a Tour

We would love to help you see this beautiful home! As a full-service brokerage, we can help you tour. Please submit an offer, and answer questions about the buying process.

Enter a valid email

Thank you

for your interest in 532 2ND Street, Neptune Beach, FL 32266

back to page
532 2ND Street
Navigate
Neptune Beach

Explore Neptune Beach

The city of Neptune Beach is a quaint community located between Jacksonville Beach and Atlantic Beach.

read more
532 2ND Street
explore in 3d

Mortgage Calculator

Estimate your monthly mortgage payment, including the principal and interest, property taxes, and HOA. Adjust the values to generate a more accurate rate.
$0,000 Your Payment 20 15 65
$0,000 Your Payment

I'm Interested In

532 2ND Street

or
  • CallHolly Reaves

    License #3354877

    (904) 735-4141
  • Featured Properties

    No results available

    Follow Us On Instagram