Leave a Message

By providing your contact information to CIRE First Coast, your personal information will be processed in accordance with CIRE First Coast's Privacy Policy. By checking the box(es) below, you consent to receive communications regarding your real estate inquiries and related marketing and promotional updates in the manner selected by you. For SMS text messages, message frequency varies. Message and data rates may apply. You may opt out of receiving further communications from CIRE First Coast at any time. To opt out of receiving SMS text messages, reply STOP to unsubscribe.

Thank you for your message. We will be in touch with you shortly.

Explore Our Properties

Property Description

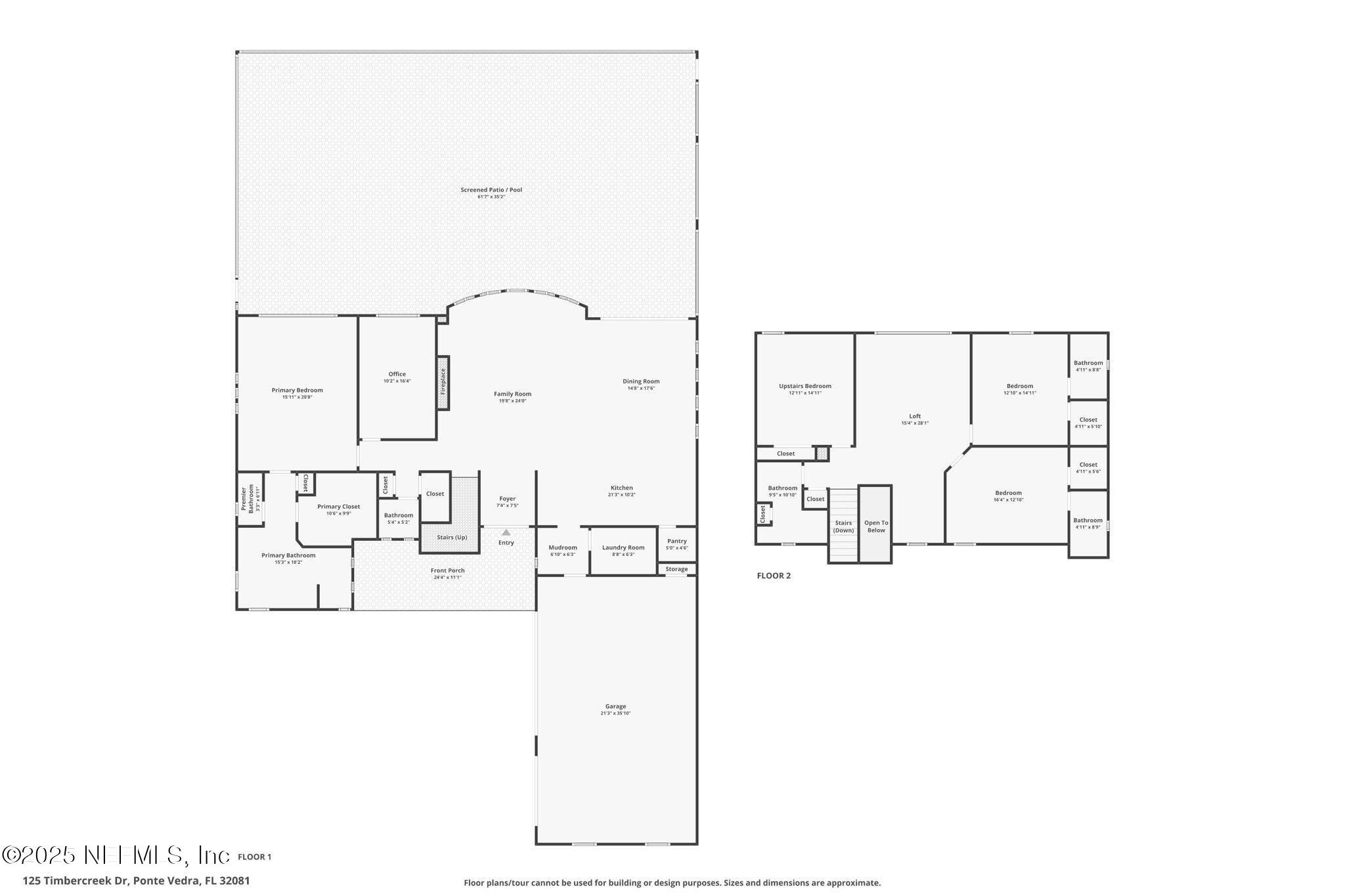
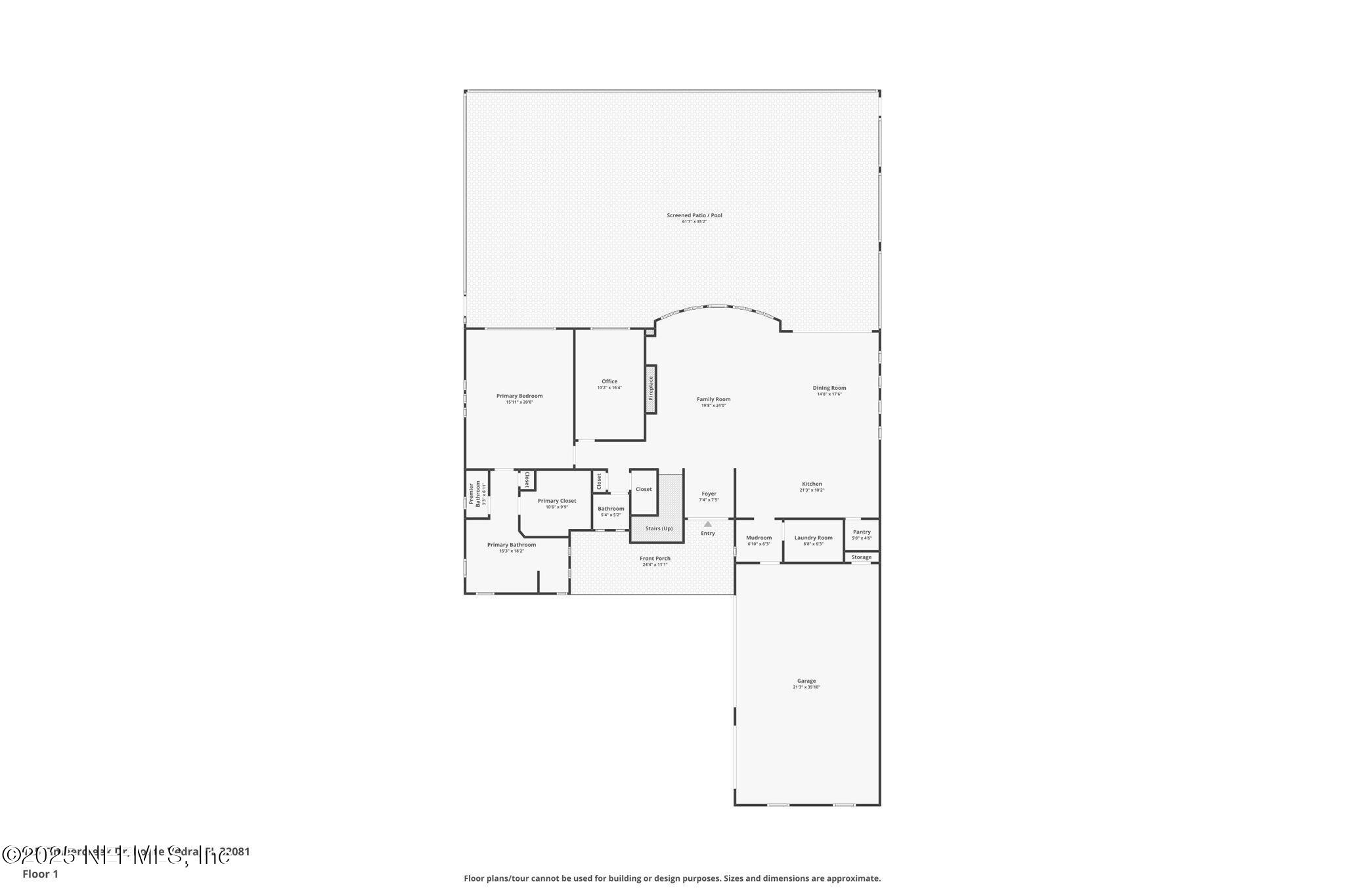
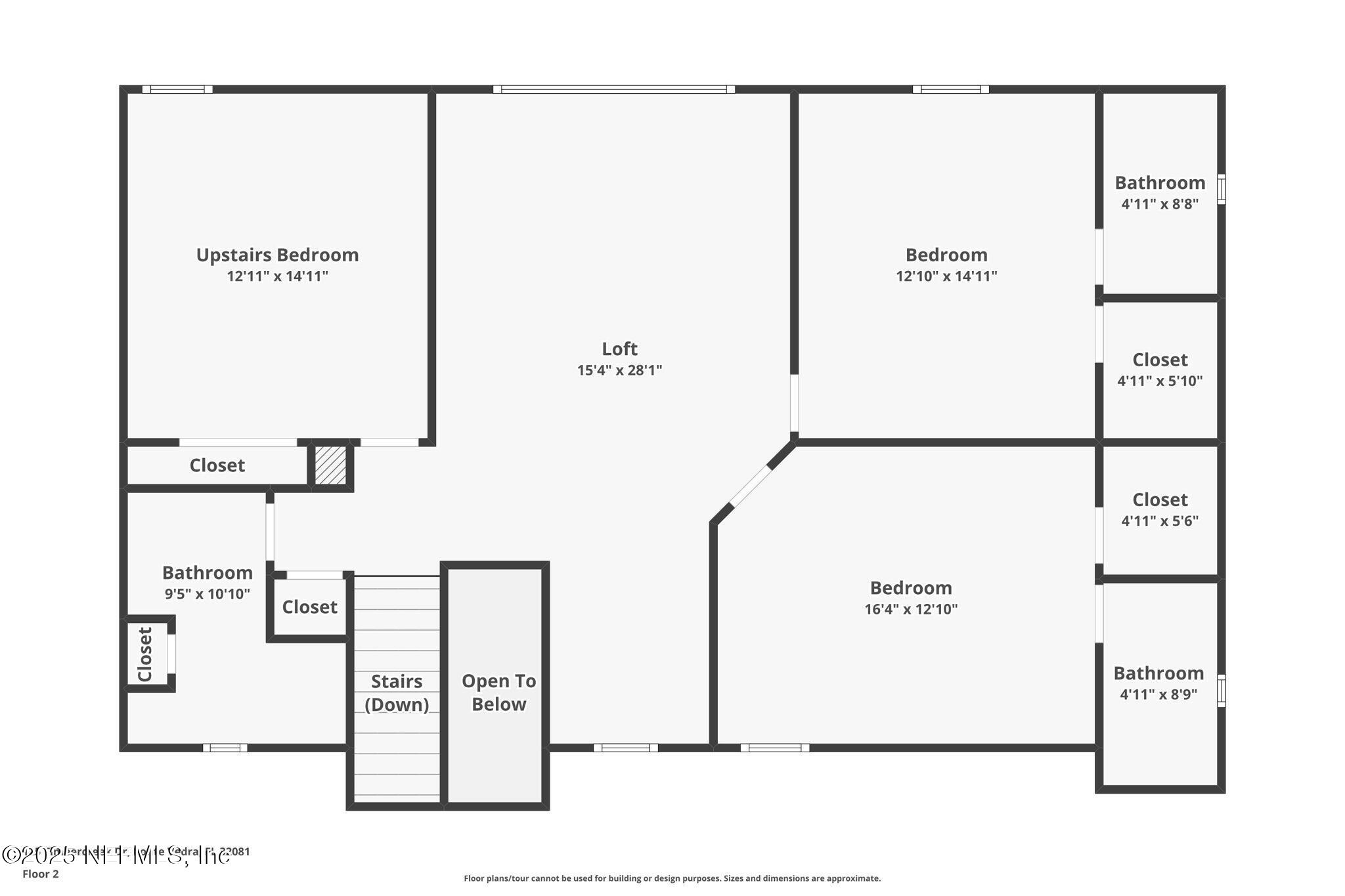
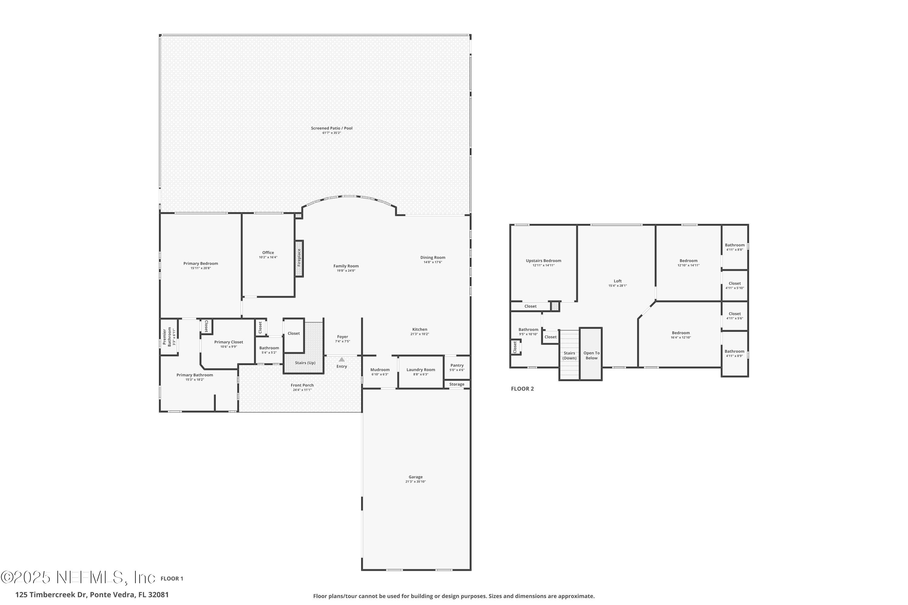
Live the Nocatee Lifestyle in this Twenty Mile home with Pool including 4 Bed + 4.5 Bath PLUS office, Bonus room located on one of the best streets in The Colony on a wide and Private Preserve Lot! The ICI Marabella Floorplan with Large 3 Car Garage has been expanded by 2' making all the rooms more spacious! All bedrooms have their own Bathroom. Upgrades throughout with Wood Flooring downstairs, LVP upstairs, Custom trim, Designer Lighting, Closets, Drop Zone, Large Laundry Room. The Kitchen has a Custom Range hood, 36'' Natural Gas Cooking, Quartz Countertops. The backyard is ready for you all year around with a Saltwater Pool and Spa, Expanded Covered Patio and Clear View Screen. Pre Plumbed for a summer kitchen and Space for everyone! Better than new and move in Ready!

Overview

Property Status
For Sale
Lot Size
0.33 Acres
MLS ID
2115884
Property Type
Residential
Year Built
2019

Features & Amenities

Neighborhood
Ponte Vedra
Architecture Styles
Traditional
View Description
Protected Preserve
Stories
2
Garage Spaces
3.0
Water Source
Public
Utilites
Cable Available, Electricity Available, Electricity Connected, Natural Gas Available, Natural Gas Connected, Sewer Available, Sewer Connected, Water Available
Pool
In Ground, Gas Heat, Heated, Pool Sweep, Salt Water
Roof
Shingle
Lot Features
Wooded
Parking
Garage
Heat Type
Central, Electric, Heat Pump
Air Conditioning
Central Air, Electric
Laundry Room
Electric Dryer Hookup, Gas Dryer Hookup, Washer Hookup
Fireplace
Electric
Appliances
Dishwasher, Disposal, Dryer, Gas Cooktop, Microwave, Refrigerator, Tankless Water Heater
Other Interior Features
Open Floorplan, Pantry, Primary Bathroom -Tub with Separate Shower, Walk-In Closet(s)
Sewer
Public Sewer
HOA Amenities
Pool, Basketball Court, Childrens Pool, Dog Park, Fitness Center, Jogging Path, Pickleball, Playground, Trash
Elementary School
Palm Valley Academy
Middle School
Palm Valley Academy
High School
Allen D. Nease
Sales Price
$1,565,000
Real Estate Tax
$10,797/yr
HOA
$660/yr

Downloads

125 TIMBERCREEK Drive

Schedule a Tour

We would love to help you see this beautiful home! As a full-service brokerage, we can help you tour. Please submit an offer, and answer questions about the buying process.

Enter a valid email

Thank you

for your interest in 125 TIMBERCREEK Drive, Ponte Vedra, FL 32081

back to page
125 TIMBERCREEK Drive
Navigate
Ponte Vedra

Explore Ponte Vedra

read more
125 TIMBERCREEK Drive
explore in 3d

Mortgage Calculator

Estimate your monthly mortgage payment, including the principal and interest, property taxes, and HOA. Adjust the values to generate a more accurate rate.
$0,000 Your Payment 20 15 65
$0,000 Your Payment

I'm Interested In

125 TIMBERCREEK Drive

or
  • CallKatie Hayse

    License #3398658

    (904) 652-6231
  • Featured Properties

    No results available

    Follow Us On Instagram