Leave a Message

Thank you for your message. We will be in touch with you shortly.

Explore Our Properties

Property Description

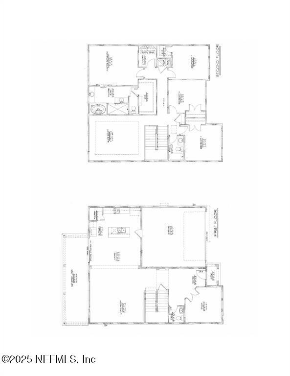
This custom home could be built on this lot! Welcome to the spacious Malibu, a 2-story, 4-bedroom, 2.5-bath home. Enter the home and be immediately welcomed by a flex room that can serve many purposes, including a study, an office, a den, or an optional 5th bedroom. Feel the openness of this home as you step into the large gathering room that is open to the second floor. There is plenty of room for family and friends in this space. The gourmet kitchen and spacious dining area open to the lanai, letting in tons of sunshine. The second floor houses all the bedrooms, including the owner's suite. A game room is an option for the open space to the gathering room below. Floor plan in photos. Perfectly situated in the heart of Amelia Island, this location offers the best of both worlds--walkable to historic downtown Fernandina Beach, Central Park, and the beach. This is a proposed custom home to be built on this lot by ICI Homes offering different custom floor plans. See MLS #2118632 to purchase the lot only.

Overview

Property Status
For Sale
Lot Size
5,702 Sq.Ft.
MLS ID
2108784
Property Type
Residential
Year Built
2026

Features & Amenities

Neighborhood
Amelia Island
Stories
2
Garage Spaces
1.0
Water Source
Other
Utilites
Other
Parking
Garage
Heat Type
Central, Electric
Air Conditioning
Central Air, Electric
Sales Price
$790,900

Downloads

0 SORENSEN Terrace

Schedule a Tour

We would love to help you see this beautiful home! As a full-service brokerage, we can help you tour. Please submit an offer, and answer questions about the buying process.

Enter a valid email

Thank you

for your interest in 0 SORENSEN Terrace, Fernandina Beach, FL 32034

back to page
0 SORENSEN Terrace
Navigate
Amelia Island

Explore Amelia Island

It is part of the Sea Islands chain of barrier islands, on the U.S. state of Florida’s Atlantic coast.

read more

Mortgage Calculator

Estimate your monthly mortgage payment, including the principal and interest, property taxes, and HOA. Adjust the values to generate a more accurate rate.
$0,000 Your Payment 20 15 65
$0,000 Your Payment

I'm Interested In

0 SORENSEN Terrace

or
  • CallKelly Powers

    License #3494664

    9045571581
  • Featured Properties

    No results available

    Follow Us On Instagram