Leave a Message

By providing your contact information to CIRE First Coast, your personal information will be processed in accordance with CIRE First Coast's Privacy Policy. By checking the box(es) below, you consent to receive communications regarding your real estate inquiries and related marketing and promotional updates in the manner selected by you. For SMS text messages, message frequency varies. Message and data rates may apply. You may opt out of receiving further communications from CIRE First Coast at any time. To opt out of receiving SMS text messages, reply STOP to unsubscribe.

Thank you for your message. We will be in touch with you shortly.

Explore Our Properties

Property Description

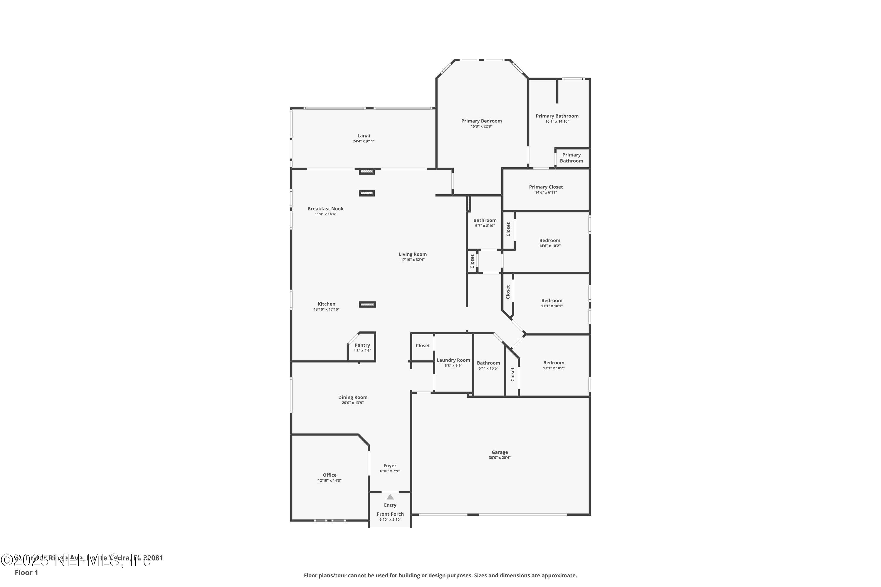
Incredible opportunity to own 61 Taylor Ridge Avenue in Ponte Vedra, Florida! This beautiful 4 Bedroom, 3 Full bathroom, office and dining/flex space home with a true three car garage AND mature, shrubs/trees on a larger lot is spacious and all on one level. Walk in and notice the steps leading up to the decorative ornate glass front door, nice foyer, Office with French glass doors as well as a built in Murphy bed for functionality. Separate dining room with built in cabinets for extra storage & custom wallpaper make this space perfect for entertaining. The kitchen has a huge center island, lots of cabinets with pulls, and is open to the family room for great functionality. The kitchen has lots of countertop space, gourmet kitchen appliances as well as an eat in area. Double sliders to the screen lanai from the family room allow for indoor outdoor entertainment. Primary bedroom has views of the mature shrubs & trees make this lot very private. Three additional bedrooms and two full bathrooms are separated with their own entryway. Two bedrooms share one full bathroom and another bedroom has it's own bathroom and could be made into an in-law suite. The three car garage with garage door opener allows for plenty of storage and parking. The backyard has mature trees and shrubs making it private. Newer HVAC (2021), NEW refrigerator (2025) and dishwasher (2023). Tile floor and LVP flooring in the secondary bedrooms & area. This 2686 sq ft home in Greenleaf Village is a very short walk to the local neighborhood park, convenient proximity to Valley Ridge Academy (K-8) in St Johns County. Two parks are in the Greenleaf Village community. Greenleaf Village is located close to the new Publix at Nocatee as well as an easy drive to the Nocatee Town Center. Conveniently located for easy access to 210 and US Hwy 1. Part of the Nocatee Community and access to all of Nocatee's amenities and events!

Overview

Property Status
Pending
Lot Size
7,840.8 Sq.Ft.
MLS ID
2121015
Property Type
Residential
Year Built
2013

Features & Amenities

Neighborhood
Ponte Vedra
Architecture Styles
Ranch, Traditional
View Description
Trees/Woods
Stories
1
Garage Spaces
3.0
Water Source
Public
Utilites
Cable Available, Electricity Connected, Natural Gas Connected, Sewer Connected, Water Connected
Roof
Shingle
Lot Features
Many Trees, Sprinklers In Front, Sprinklers In Rear
Parking
Electric Vehicle Charging Station(s), Garage, Garage Door Opener
Heat Type
Central
Air Conditioning
Central Air
Laundry Room
Electric Dryer Hookup, Gas Dryer Hookup, Lower Level, Sink
Appliances
Dishwasher, Gas Range, Microwave, Refrigerator, Tankless Water Heater
Other Interior Features
Breakfast Bar, Breakfast Nook, Built-in Features, Ceiling Fan(s), Eat-in Kitchen, Entrance Foyer, Kitchen Island, Open Floorplan, Primary Bathroom -Tub with Separate Shower, Primary Downstairs, Split Bedrooms, Walk-In Closet(s)
Sewer
Public Sewer
HOA Amenities
Pool, Basketball Court, Childrens Pool, Dog Park, Fitness Center, Jogging Path, Park, Pickleball, Playground, Tennis Court(s)
Security Features
Carbon Monoxide Detector(s), Smoke Detector(s)
Elementary School
Valley Ridge Academy
Middle School
Valley Ridge Academy
High School
Allen D. Nease
Sales Price
$669,000
Real Estate Tax
$10,165/yr
HOA
$280/yr

Downloads

61 TAYLOR RIDGE Avenue

Schedule a Tour

We would love to help you see this beautiful home! As a full-service brokerage, we can help you tour. Please submit an offer, and answer questions about the buying process.

Enter a valid email

Thank you

for your interest in 61 TAYLOR RIDGE Avenue, Ponte Vedra, FL 32081

back to page
61 TAYLOR RIDGE Avenue
Navigate
Ponte Vedra

Explore Ponte Vedra

read more

Mortgage Calculator

Estimate your monthly mortgage payment, including the principal and interest, property taxes, and HOA. Adjust the values to generate a more accurate rate.
$0,000 Your Payment 20 15 65
$0,000 Your Payment

I'm Interested In

61 TAYLOR RIDGE Avenue

or
  • CallChristina McIntosh

    License #3388986

    (904) 254-4574
  • Featured Properties

    No results available

    Follow Us On Instagram